CASA INDIPENDENTE CON GARAGE

In vendita
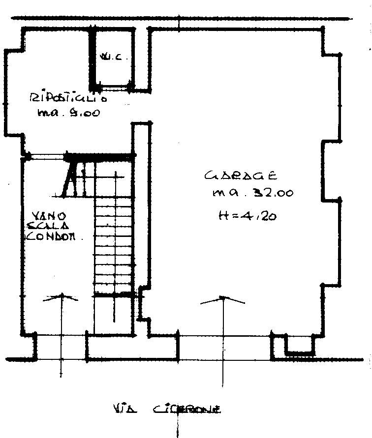
Montescaglioso - Via Cicerone
58.000 €
Appartamento
Categoria
65
m2
3
Locali
2
Camere
2
Bagni
1
Box
Descrizione
In zona centrale proponiamo in vendita un'intera palazzina composta da un garage a piano terra di circa 41 mq, appartamento al primo piano di 65 mq e sovrastante terrazzo e soffitta esclusivi. L'ingresso del portone è ampio ed ha anche uno spazio retrostante con un piccolo bagno di servizio e permette l'accesso interno al vano garage. L'appartamento si compone di una sala con balcone, un cucinotto, due camere da letto e bagno; dall'interno dell'appartamento si accede alla terrazza esclusiva con una piccola soffitta. La facciata esterna è in buono stato mentre l'interno dell'appartamento è abitabile ma da rimodernare. Il prezzo richiesto è di €58.000
Caratteristiche principali
Codice:
V000231
Città:
Montescaglioso
Categoria:
Appartamento
Locali:
3
Camere:
2
Bagni:
2
Mq:
65
Box:
1
Mq Box:
41
Balconi:
1
Mq Balcone:
5
Terrazzi:
1
mq Terrazzo:
50
Classe energetica:
G
Stato Immobile:
Buono
Grado:
Medio
Posizione:
Centro
Panorama:
Vista Aperta
Orientamento:
Nord Ovest Sud Est
Lati Liberi:
2
Arredi:
Non Arredato
Tipo Soggiorno:
Sala da Pranzo
Tipo Cucina:
Semi Abitabile
Riscaldamento:
Autonomo
Tipo Riscaldam.:
Caldaia
Tipo Impianto:
Radiatori
Fonte Energetica:
Metano
Acqua Calda:
Autonoma
Raffrescamento:
Split
Infissi:
Alluminio Doppio Vetro
Serramenti:
Buono
Persiana:
Tapparella PVC
Pavim. Giorno:
Graniglia
Pavim. Notte:
Graniglia
Tipo Saracinesca:
Manuale
Accessori
Aria Condizionata
Ripostiglio
Mappa
Cookie preference